| 20070511 温浴施設説明 |
|||
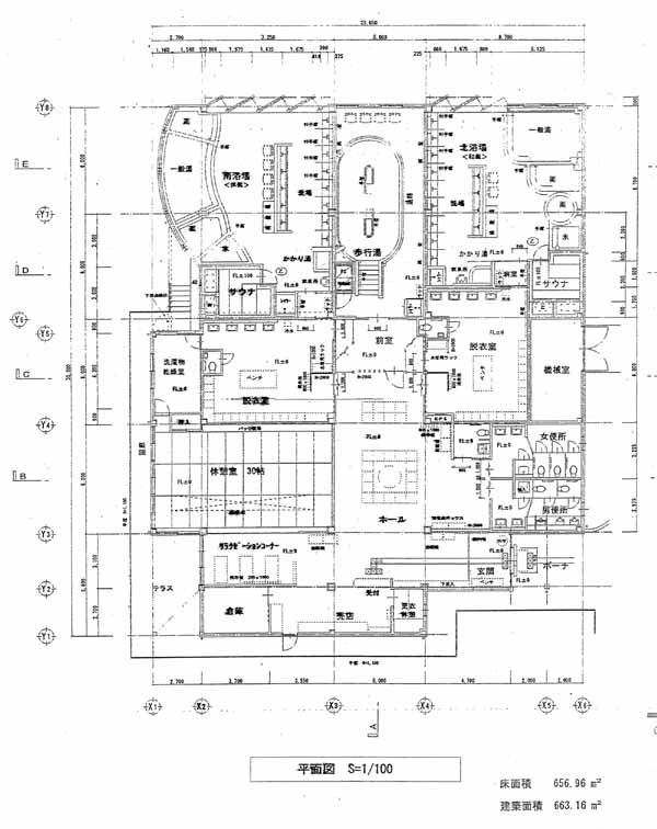
| 広さ:200坪 2007.6月:着工 年内:完成 2008.2月頃:営業開始 料金:5〜600円を予定 営業時間:午前10時ころ〜午後9時ころ 「北浴場(和風)」と「南浴場(洋風)」を 「男湯」と「女湯」に、日替わりで指定する予定 カケ流しの湯で、薬湯アリ。 真ん中の「歩行湯」は、男女兼用。水着を着てもらう。 ここだけ循環湯。 サウナ有。休憩所(30畳)有。 |
|||
| ☆ | |||
| がまだす駐車場 | |||
![]() ↑クリックしてください↑ |
がまだす 駐車場 |
ビ ル |
|
| 一番街アーケード | |||